Banner Image
THE WHEAT BARN - SHOTLEY HALL BARNS
SHOTLEY HALL BARNS
House types by plot.
  1. Wheat Barn
  2. Corn Barn
  3. Rye Barn
  4. Barley Barn

 


4 bedroom single storey attached house with
vaulted ceilings, double cart lodge, garage and store.

The Wheat Barn Artists Impression

Artist’s impression
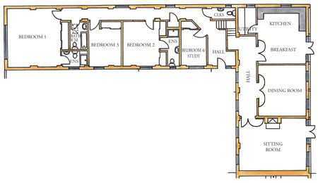
GROUND FLOOR
Sitting Room 6.3m x 5.1m 20' 8" x 16' 9"
Dining Room 4.8m x 4.3m 15' 9" x 14' 1"
Kitchen/Breakfast Area 5.7m x 4.3m 18' 8" x 14' 1"
Utility 2.4m x 1.8m 7' 10" x 5' 11"
Hall    
Cloakroom 2.1m x 1.1m 6' 11" x 3' 7"
Bedroom 1 5.5m x 4.9m 18' 1" x 16' 1"
En-suite 2.3m x 1.6m 7' 7" x 5' 3"
Bedroom 2 4.2m x 3.3m 13' 9" x 10' 10"
En-suite 3.5m x 1.2m 11' 6" x 3' 11"
Bedroom 3 3.4m x 3.1m 11' 2" x 10' 2"
Bedroom 4/Study 3.4m (max) x 2.3m 11' 2" (max) x 7' 7"
Bathroom 2.3m x 1.6m 7' 7" x 5' 3"
Cart Lodge 6.1m x 5.3m 20' x 17' 5"
Garage/Store 5.2m x 5.2m 17' 1" x 17' 1"
   
Wheat Barn Floor Plan
 

Plans not to scale. Room dimensions for guidance only.
Please check actual sizes when visiting the site.

Although every care has been taken to ensure the accuracy of all the information on this website, the contents do not form part of any contract, or constitute a representation inducing any such contract. The developer reserves the right to alter any part of the development, specification or floor layouts at any time. Measurements given should not be relied upon for carpets etc and should be verified. The floor plans contained on this website are taken from working drawings and dimensions may vary slightly to finished properties.

Winchester Homes Ltd  T. 01953 681982  E. sales@winchester-homes.co.uk